Menu
Your Cart

Māja AR-58

Māja  AR-58 by labamaja
Māja  AR-58 by labamaja
Māja  AR-58 by labamaja
Māja  AR-58 by labamaja
Māja  AR-58 by labamaja
Māja  AR-58 by labamaja
Māja  AR-58 by labamaja
Māja  AR-58 by labamaja
Māja  AR-58 by labamaja
Māja  AR-58 by labamaja
Māja  AR-58 by labamaja
Māja  AR-58 by labamaja
Māja AR-58
  • Statuss: Ir pārdošanā
237 480,00€
Bez nodokļa: 237 480,00€

Papildu izvēles:

Cena ir uzrādīta orientējoša zema energopatēriņa mājai

ar pilnu pabeigtu ārējo apdari (bez iekšējās apdares).

Cenā ietilpst:
- Nosiltināti lentveide pamati ar komunikāciju izvadiem;
- Ārsienas no Aeroc blokiem (biezums 300mm);
- Fasādes siltinājums (akmens vate, biezums 100 mm);
- Ārsienu dekoratīvais apmetums;
- Pieckameru PVC logi;
- Jumts ar segumu;
- Ūdens notek sistēmas.

Pasūtot pilnu pakalpojumu komplektu, kurā ietilpst mājas projekts, mājas celtniecība, zemes gabala iegāde, visu nepieciešamo komunikāciju ierīkošana, jums ir iespēja saņemt ievērojamu atlaidi!

 

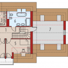
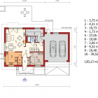
Ēkas tips:

Mansardstāva māja

Garums x (m):

16.80

Platums y (m):

9.90

Griestu augstums (m)

3.00

Ēkas augstums (m):

8.99

Jumta slīpums (°):

42

Istabu Skaits:

4

Kopējā platība (m 2 ) *:

197.9

Cena par projektu

EUR

Celtniecības izmaksas
(ar PVN):

237 480 EUR

 

Piezvani +371 29 61 61 64 un saņem atlaidi!

Atslēgvārdi: projekts
Informējam, ka šajā tīmekļa vietnē tiek izmantotas sīkdatnes (angļu val. "cookies"). Sīkdatne uzkrāj datus par vietnes apmeklējumu.