Menu
Your Cart

Māja AT-172

Māja  AT-172 by labamaja
Māja  AT-172 by labamaja
Māja  AT-172 by labamaja
Māja  AT-172 by labamaja
Māja  AT-172 by labamaja
Māja  AT-172 by labamaja
Māja  AT-172 by labamaja
Māja  AT-172 by labamaja
Māja  AT-172 by labamaja
Māja  AT-172 by labamaja
Māja  AT-172 by labamaja
Māja  AT-172 by labamaja
Māja  AT-172 by labamaja
Māja  AT-172 by labamaja
Māja  AT-172 by labamaja
Māja  AT-172 by labamaja
Māja AT-172
  • Statuss: Ir pārdošanā
156 000,00€
Bez nodokļa: 156 000,00€

Papildu izvēles:

 Piedāvājam jums projektus, kurus izstradāja mūsu partneri Studio Atrium.

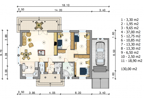
Ēkas tips: Vienstāvu māja
Garums x (m): 18.10
Platums y (m): 9.70
Griestu augstums (m) 2.70
Ēkas augstums (m): 6.61
Jumta slīpums (°): 30 / 40
Istabu Skaits: 4
Kopējā platība (m 2 ) *:
130.00
Cena par projektu  EUR

Celtniecības izmaksas
(ar PVN):

156 000 EUR

 


 


 


 


 

Cena ir uzrādīta orientējoša zema energopatēriņa mājai 
ar pilnu pabeigtu ārējo apdari (bez iekšējās apdares).

 Cenā ietilpst:
- Nosiltināti lentveide pamati ar komunikāciju izvadiem;
- Ārsienas no Aeroc blokiem (biezums 300mm);
- Fasādes siltinājums (akmens vate, biezums 100 mm);
- Ārsienu dekoratīvais apmetums;
- Pieckameru PVC logi;
- Jumts ar segumu;
- Ūdens notek sistēmas.

Pasūtot pilnu pakalpojumu komplektu, kurā ietilpst mājas 
projekts, mājas celtniecība, zemes gabala iegāde, visu
nepieciešamo komunikāciju ierīkošana, jums ir iespēja saņemt 
ievērojamo atlaidi!

Piezvani +371 29 61 61 64 un saņem atlaidi!
 

 

 


 

 

 

Atslēgvārdi: projekts
Informējam, ka šajā tīmekļa vietnē tiek izmantotas sīkdatnes (angļu val. "cookies"). Sīkdatne uzkrāj datus par vietnes apmeklējumu.