Menu
Your Cart

Māja AR-26

Māja  AR-26 by labamaja
Māja  AR-26 by labamaja
Māja  AR-26 by labamaja
Māja  AR-26 by labamaja
Māja  AR-26 by labamaja
Māja  AR-26 by labamaja
Māja  AR-26 by labamaja
Māja  AR-26 by labamaja
Māja  AR-26 by labamaja
Māja  AR-26 by labamaja
Māja AR-26
  • Statuss: Ir pārdošanā
113 784,00€
Bez nodokļa: 113 784,00€

Papildu izvēles:

Cena ir uzrādīta orientējoša zema energopatēriņa mājai
ar pilnu pabeigtu ārējo apdari (bez iekšējās apdares).

Cenā ietilpst:
- Nosiltināti lentveide pamati ar komunikāciju izvadiem;
- Ārsienas no Aeroc blokiem (biezums 300mm);
- Fasādes siltinājums (akmens vate, biezums 100 mm);
- Ārsienu dekoratīvais apmetums;
- Pieckameru PVC logi;
- Jumts ar segumu;
- Ūdens notek sistēmas.

Pasūtot pilnu pakalpojumu komplektu, kurā ietilpst mājas projekts, mājas celtniecība, zemes gabala iegāde, visu nepieciešamo komunikāciju ierīkošana, jums ir iespēja saņemt ievērojamo atlaidi!

Ēkas tips: Mansardstāva māja
Garums x (m): 9.50
Platums y (m): 7.40
Griestu augstums (m) 3.00
Ēkas augstums (m): 8.37
Jumta slīpums (°): 45
Istabu Skaits: 4

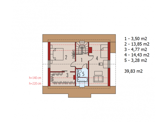
Kopējā platība (m 2 ) *:

94.82
Cena par projektu  -

Celtniecības izmaksas
(ar PVN):

113 784 EUR

 

Piezvani +37129616164 un saņem atlaidi!

Atslēgvārdi: projekts
Informējam, ka šajā tīmekļa vietnē tiek izmantotas sīkdatnes (angļu val. "cookies"). Sīkdatne uzkrāj datus par vietnes apmeklējumu.